{"pluginID":"1","url":"goodlettsville-homes-for-rent"}
3822 Pacifica Drive
Hermitage, TN 37076
Full Gallery
Property Details
$2,000.00
USD / Month
4 Beds
Beds
2
Baths
1316
sqft
•
For Rent
Building Type:
Duplex
Deposit:
$1,800.00
Pets:
Yes
Date Available:
Immediately
Pet Type:
Dogs, Cats
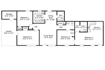
Special: 3+BR, 2BA duplex $300 off for a lease starting 3/1/26 or sooner Please do not apply without speaking with us first.)
This unique duplex offers up to 4 bedrooms, or a part can be utilized as an in-law suite (see layout).While this is a duplex, it's really like two houses attached at the corner. NOTES: 1) Dove Properties is not responsible for information provided on third party websites. 2) These pictures were taken in the past and may not represent its current condition. 3) Work is being done now and it will likely be ready by 2/14/26.
Features and Amenities
Flooring
- Ceramic Tile
- Hardwood
Kitchen
- Dishwasher
- Electric Stove
- Refrigerator
