{"pluginID":"1","url":"goodlettsville-homes-for-rent"}
923 Circle Dr.
Springfield, TN 37172
Full Gallery
Property Details
$1,300.00
USD / Month
3 Beds
Beds
1
Bath
983
sqft
•
For Rent
Building Type:
Single Family
Deposit:
$1,200.00
Pets:
Yes
Date Available:
02-20-2026
Pet Type:
Dogs, Cats
Special: 3 bedroom, 1 bath house $300 off for a lease starting 3/1/26 or sooner
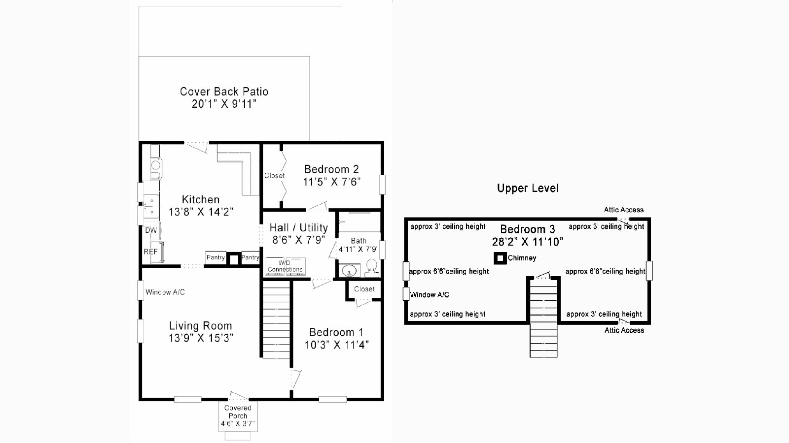
This house has 2 bedrooms downstairs and one long room upstairs. The upstairs room can easily be split into to spaces bedroom/ study or bedroom/ bedroom, bedroom/ playroom. There is a covered patio overlooking a large back yard. NOTES: 1) Dove Properties is not responsible for information provided on third party website. 2) These pictures are old. Some things have changed, like more of the paneling has been painted. New pictures coming soon.
Features and Amenities
Amenities
- Air Conditioning
- Gas Heat
Flooring
- Carpet
Kitchen
- Dishwasher
- Electric Stove
- Refrigerator
Outdoor
- Patio
